Full Description
Take a moment to view our signature, guided tour of this impressive home & its prime location within Sandbach!Enjoying family accommodation spanning to almost 1900 square feet on the exclusive 'Tatton Drive' Estate, a favoured part of the town. 10, Henshall Drive is an outstanding family home which has seen much improvement and updating from the current owners. The home finds itself close to highly regarded schooling for both primary & secondary students, whilst being conveniently close to Sandbach Park, Sandbach Town Centre and its variety of day-to-day amenities. For the commuter, you are on the right side of town for handy access to the M6 motorway network & a touch further afield, Sandbach Train station can be found plus access to neighbouring Crewe & Congleton.Accompanying this outstanding home are a number of impressive features to note, some of which include:- a welcoming reception hall, a fireplace with cast iron log burning stove to the lounge, gas central heating, double glazing, wooden style flooring to the majority of the ground floor, a bespoke fitted kitchen which forms part of the extension incorporating a number of integrated appliances, breakfast island & wealth high-gloss units, patio door to the rear garden from the lounge and an updated sanitary ware to the cloakroom, bathroom and en-suite.Upstairs, the home has four well-balanced bedrooms, all of which are accessed from the large galleried landing and all can accommodate double beds, with a sizeable en-suite to the master, in addition to the family bathroom.Externally the property benefits from a double garage fronted by a block-paved driveway providing off road parking for several vehicles and established gardens to front and rear, with the rear enjoying a south westerly sunny aspect and being the perfect size for entertaining friends and family!So what's not to love, view our photos, video & floorplan then call the experts here at Chris Hamriding to book that all-important viewing!
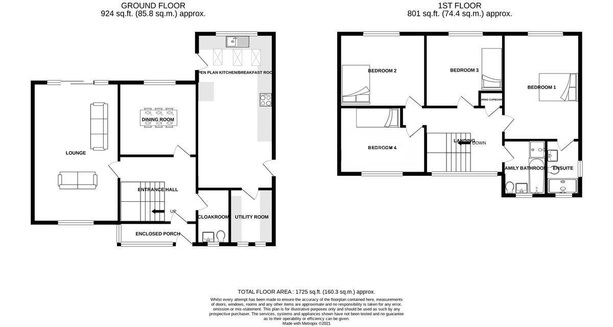
Accommodation
Enclosed Porch
Entrance Hall (3.58 x 3.10 (11'8" x 10'2"))
Cloakroom (2.62 x 1.39 (8'7" x 4'6"))
Lounge (6.67 x 3.96 (21'10" x 12'11"))
Dining Room (3.58 x 3.37 (11'8" x 11'0"))
Open-Plan Kitchen/Breakfast Room (7.10 x 3.54 (23'3" x 11'7"))
Utility Room (2.60 x 2.14 (8'6" x 7'0"))
First Floor Landing (4.61 x 2.98 (15'1" x 9'9"))
Bedroom One (4.60 x 3.64 (15'1" x 11'11"))
En-suite (2.61 x 1.49 (8'6" x 4'10"))
Bedroom Two (3.96 x 3.33 (12'11" x 10'11"))
Bedroom Three (3.58 x 3.51 (11'8" x 11'6"))
Bedroom Four (3.96 x 3.20 (12'11" x 10'5"))
Family Bathroom (2.56 x 1.98 (8'4" x 6'5"))
Double Garage (5.50 x 5.50 (18'0" x 18'0"))
Viewing
Please contact us on 01270 346500 if you wish to arrange a viewing appointment for this property, or require further information.
Energy Performance Certificate
Click here to view the Energy Efficiency Rating and Environmental Impact Rating for this property.
Disclaimer
Chris Hamriding - CW12 endeavour to maintain accurate depictions of properties in Virtual Tours, Floor Plans and descriptions, however, these are intended only as a guide and purchasers must satisfy themselves by personal inspection.
Accommodation
Enclosed Porch
Entrance Hall (3.58 x 3.10 (11'8" x 10'2"))
Cloakroom (2.62 x 1.39 (8'7" x 4'6"))
Lounge (6.67 x 3.96 (21'10" x 12'11"))
Dining Room (3.58 x 3.37 (11'8" x 11'0"))
Open-Plan Kitchen/Breakfast Room (7.10 x 3.54 (23'3" x 11'7"))
Utility Room (2.60 x 2.14 (8'6" x 7'0"))
First Floor Landing (4.61 x 2.98 (15'1" x 9'9"))
Bedroom One (4.60 x 3.64 (15'1" x 11'11"))
En-suite (2.61 x 1.49 (8'6" x 4'10"))
Bedroom Two (3.96 x 3.33 (12'11" x 10'11"))
Bedroom Three (3.58 x 3.51 (11'8" x 11'6"))
Bedroom Four (3.96 x 3.20 (12'11" x 10'5"))
Family Bathroom (2.56 x 1.98 (8'4" x 6'5"))
Double Garage (5.50 x 5.50 (18'0" x 18'0"))
Viewing
Please contact us on 01270 346500 if you wish to arrange a viewing appointment for this property, or require further information.
Energy Performance Certificate
Click here to view the Energy Efficiency Rating and Environmental Impact Rating for this property.
Disclaimer
Chris Hamriding - CW12 endeavour to maintain accurate depictions of properties in Virtual Tours, Floor Plans and descriptions, however, these are intended only as a guide and purchasers must satisfy themselves by personal inspection.

