- A moments stroll to miles of countryside via canal towpaths
- Peaceful area tucked away within affluent Mossley area
- A truly one off opportunity for a range of discerning buyers!
- Eco home with impressive energy efficiency
- Stunning detached new build property ready for late 2025!
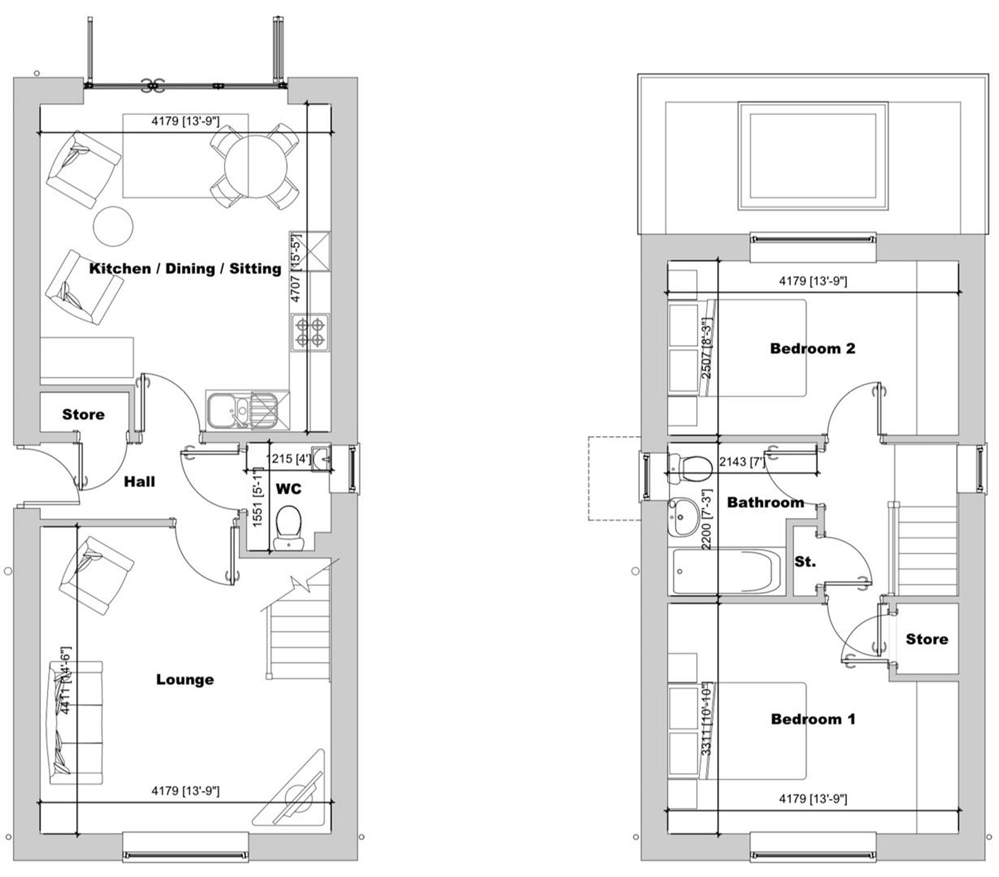
- Relaxing lounge and stunning living kitchen to ground floor
- Walking distance to train station and town centre
- Purchaser can enjoy their own input on design and specification!
- Two generous bedrooms and luxurious bathroom to first floor
- Call to register interest!
Full Description
Hidden away in a peaceful corner of this hugely sought after residential area, this new build property is an exciting and rare opportunity to be part of your very own bespoke new build home!
Expected to be completed towards the end of 2025. The two bedroom detached home is under construction by highly regarded artisan builders and the lucky new owner will have a close working relationship with the builder to customise the home and choose a variety of fixtures and fittings thus creating a very unique home bespoke to you!
Two double bedrooms, comfortable lounge, tasteful living kitchen, stylish bathroom, guest WC, gardens and driveway....what more could you need!
Local amenities are a short stroll away whilst great commuter links are in easy reach. The local train station is easily accessible and offers good links to the north and south. Finally, the local towpaths of the Macclesfield canal are on your doorstep and give way to abundant, luscious countryside!
Read on to find out more, view our CGI photos and floor plan then call us here at Chris Hamriding Estate Agents to register your interest!
EPC Rating: E
Parking - Off Street
Viewing
Please contact us on 01260 543 999 if you wish to arrange a viewing appointment for this property, or require further information.
Disclaimer
Chris Hamriding - CW12 endeavour to maintain accurate depictions of properties in Virtual Tours, Floor Plans and descriptions, however, these are intended only as a guide and purchasers must satisfy themselves by personal inspection.

