- Stunning detached family residence
- Close to excellent schools, shops and commuting access
- Four double bedrooms plus two luxury bathrooms
- Surrounded by miles of Cheshire countryside
- Driveway and double garage to front
- Private landscaped rear gardens
- Two reception rooms plus living kitchen and utility
- Must be viewed!
- Hugely exclusive development on the edge of town and country
Full Description
Take a few moments to watch our video tour of this highly attractive executive family home in a wonderful location!
Situated within an extremely exclusive development in Somerford, this recently constructed property occupies a very generous plot that's made up of a useful driveway leading to a double garage plus gardens to both front and rear. Inside the energy efficient home, the accommodation is very well planned and proportioned it really is a credit to the developers and indeed the current owners. There are two flexible reception rooms accessed off the welcoming reception hall as well as a superb dining kitchen with doors opening out into the stunning private gardens to the rear, a great space for entertaining all day and night! The kitchen also enjoys a separate utility room and the ground floor is completed by a useful guest cloakroom. Upstairs, all four bedrooms are of a generous size and the master enjoys a dressing area as well as a luxurious en suite. This home truly is ready to be enjoyed from the moment you turn the key!
Locally, abundant countryside is on your doorstep whilst brilliant commuter links are provided by good proximity to the Congleton link road, the A34 and the M6 motorway network. Great amenities are within easy reach and well respected schools at both primary and secondary level are well represented thus making this the perfect property for a busy upsizing family looking for their forever home!
Don't just take our word for it, read on to find out more, view our video tour, photos and floor plan then call us here at Chris Hamriding Estate Agents to book yourself that all important viewing!
EPC Rating: B
Lounge
Dimensions: 5 x 3.8 (16'4" x 12'5").
Dining/Sitting Room
Dimensions: 3.8 x 3 (12'5" x 9'10").
Dining Kitchen
Dimensions: 6.3 x 3.9 (20'8" x 12'9").
Utility Room
Dimensions: 2.9 x 1.7 (9'6" x 5'6").
Integral Double Garage
Dimensions: 5 x 4.2 (16'4" x 13'9").
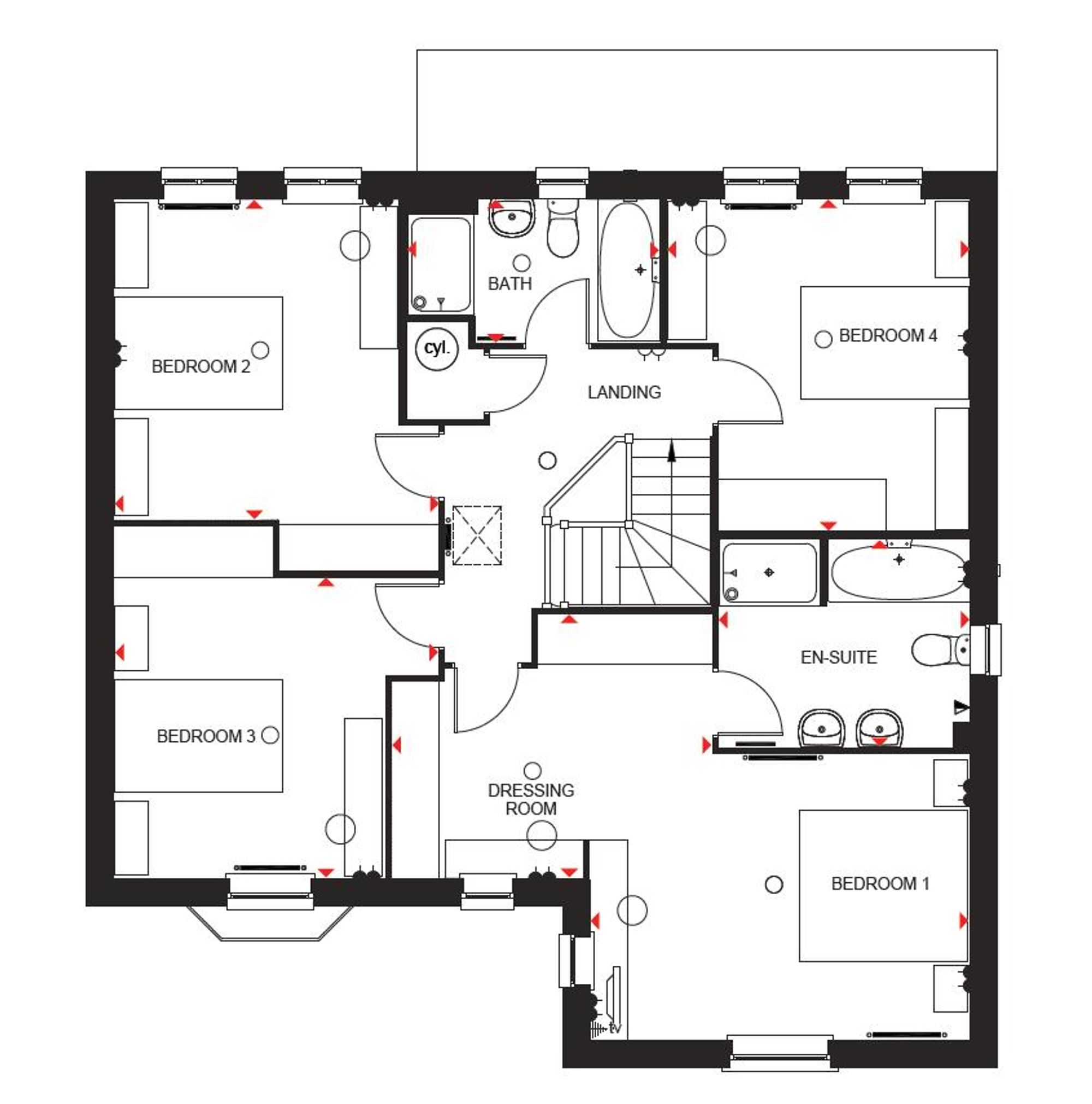
Master Bedroom
Dimensions: 6.9 x 5 (22'7" x 16'4").
En Suite
Dimensions: 3 x 2.4 (9'10" x 7'10").
Bedroom Two
Dimensions: 4.4 x 3.4 (14'5" x 11'1").
Bedroom Three
Dimensions: 4.2 x 3.2 (13'9" x 10'5").
Bedroom Four
Dimensions: 3.9 x 3.6 (12'9" x 11'9").
Parking - Garage
Parking - Driveway
Viewing
Please contact us on 01260 543 999 if you wish to arrange a viewing appointment for this property, or require further information.
Disclaimer
Chris Hamriding - CW12 endeavour to maintain accurate depictions of properties in Virtual Tours, Floor Plans and descriptions, however, these are intended only as a guide and purchasers must satisfy themselves by personal inspection.

