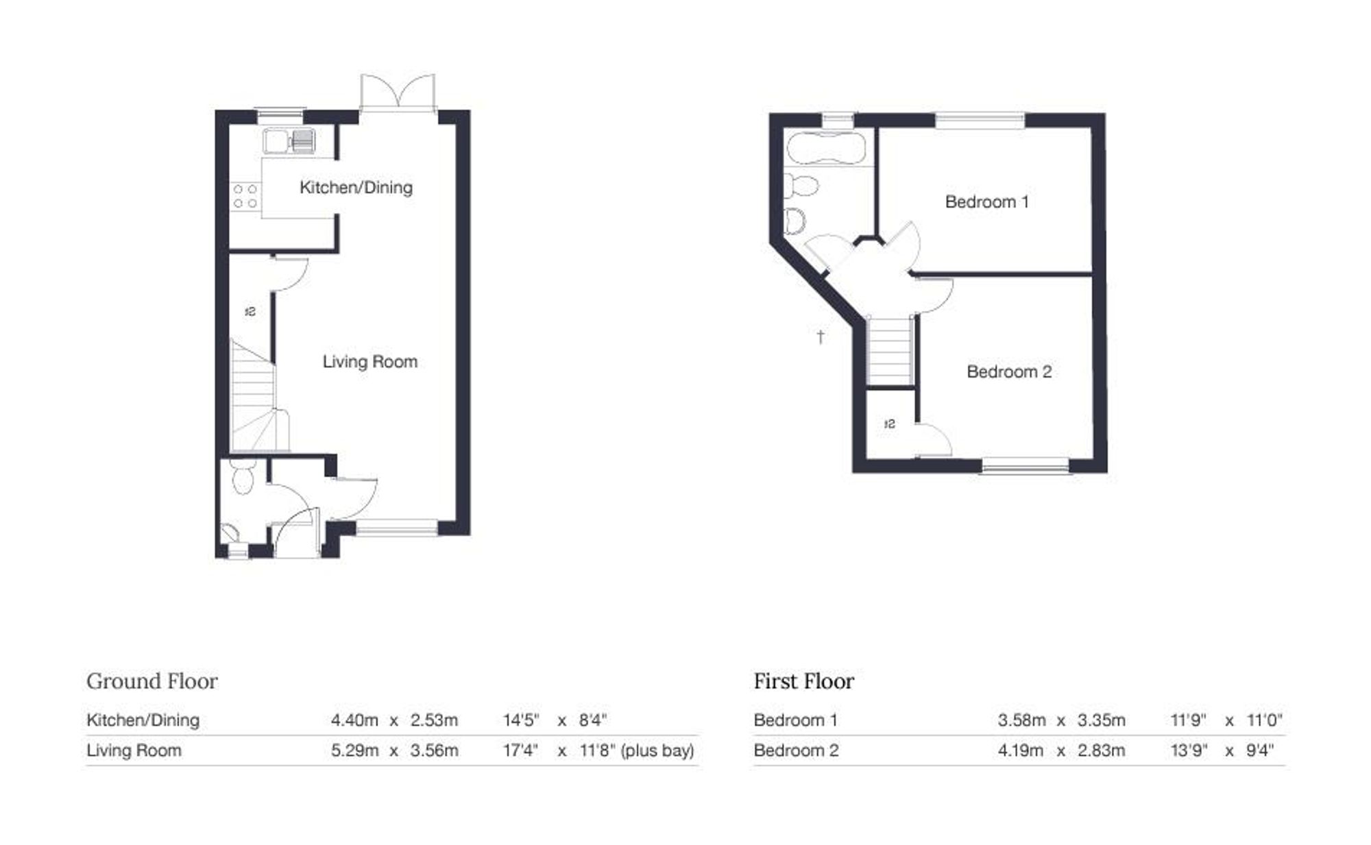
- Lounge/dining room
- Two double bedrooms
- Parking to front
- Popular shared ownership scheme with Plus Dane Housing
- Excellent location!
- No chain!
- Attractive mid town house
- Gardens to rear
- 50% Share with a rent paid on the remainder
Full Description
Tenure: Leasehold
An absolutely fantastic opportunity to buy this stunning home on a 50% share (paying a rent on the remainder).
***All potential purchasers must be approved via application to Plus Dane Housing.***
The property was constructed around 2019 and is a wonderful example that boasts well proportioned accommodation across both floors with a much larger than average private garden to the rear, just ideal for entertaining!
It's worth noting that this particular plot enjoys a beautiful aspect as well as the aforementioned extra space.
Monthly rent amount of £269.27 pcm and service charge amount of £5 pcm
Call us for more details on the shared ownership aspect and we will happily discuss matters further with you...your dream home is closer than you think!
EPC Rating: B
Viewing
Please contact us on 01260 543 999 if you wish to arrange a viewing appointment for this property, or require further information.
Disclaimer
Chris Hamriding - CW12 endeavour to maintain accurate depictions of properties in Virtual Tours, Floor Plans and descriptions, however, these are intended only as a guide and purchasers must satisfy themselves by personal inspection.

