- Close to miles of beautiful Cheshire countryside
- Must be viewed!
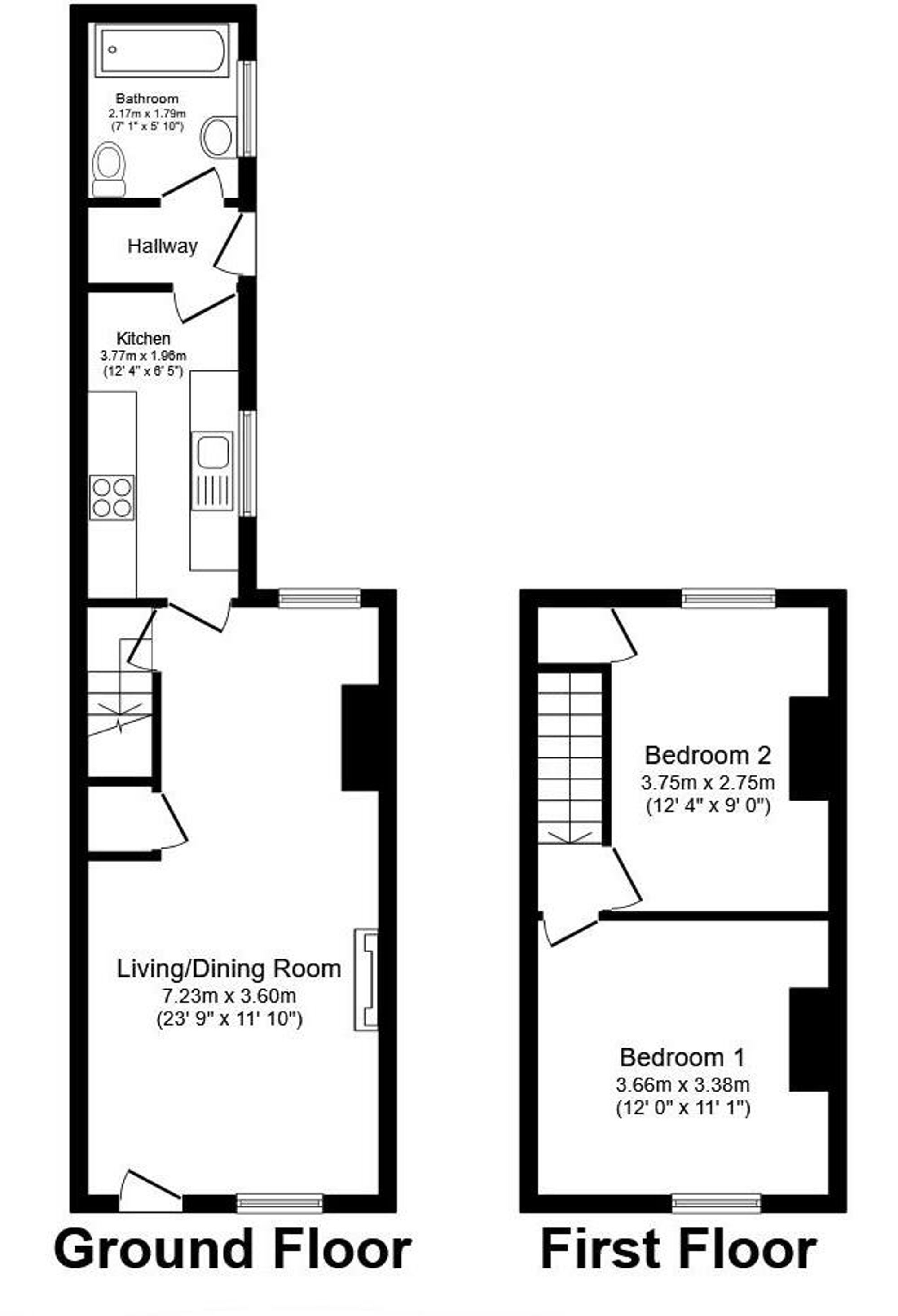
- Spacious mid terrace
- Two double bedrooms
- Two reception areas
- Close to town centre and local shops
- Well positioned for commuting to north and south
- Tasteful kitchen and bathroom
- Generous rear yard garden
- No chain!
Full Description
Offered for sale with no onward chain and located in a popular and convenient area on the edge of both town and country, this property enjoys very well proportioned accommodation across both floors and briefly comprises; generous lounge and dining room, modern kitchen, rear hall, stylish bathroom suite and two double bedrooms.
Outside is the huge bonus of a pleasant enclosed garden with useful timber shed to the rear.
Located just a moments stroll to great shops, the local town, miles of countryside and efficient commuting the home is sure to suit a wide range of buyers so read on to find out more, view our video, photos and floor plan then call the friendly property experts here at Chris Hamriding Estate Agents to book yourself that all important viewing!
EPC Rating: D
Viewing
Please contact us on 01260 543 999 if you wish to arrange a viewing appointment for this property, or require further information.
Disclaimer
Chris Hamriding - CW12 endeavour to maintain accurate depictions of properties in Virtual Tours, Floor Plans and descriptions, however, these are intended only as a guide and purchasers must satisfy themselves by personal inspection.

