- Superb country residence in exclusive Cheshire hamlet
- A wealth of flexible accommodation across both floors
- A very rare opportunity that must be viewed!
- Five generous bedrooms, two bathrooms, four reception rooms
- A short journey to both Congleton and Holmes Chapel
- Detached property and garage measuring over 3200 square feet
- Surrounded by beautiful Cheshire countryside
- Large dining kitchen plus utility room
- Extensive mature gardens, woodlands and gated driveways
- Beautiful vast gardens measuring approx 1.2 acres
Full Description
Relax and unwind whilst watching our guided video tour of this incredible opportunity!
The Homestead is a truly special offering in today's busy marketplace and offers buyers the opportunity to acquire a most generous and established detached residence sitting on a vast plot measuring over 1.2 acres! All of the above is located in the exclusive Cheshire hamlet of Brereton and the address of Brereton Heath Lane proves popular with discerning buyers time and time again.
Surrounded by miles of breathtaking countryside and just a stone's throw to the wonderful Brereton nature reserve the home has been a much loved family residence and enjoyed many improvements in recent years. Originally constructed around 1932, the property has been generously extended and along with the detached garage/workshop boasts a total of over 3200 square feet of internal space laid out in a very flexible manner to suit a wide range of buyers' needs.
The Homestead is sure to deliver an array of lifestyles and put a smile on your face!
Locally, as well as the masses of countryside in which to indulge yourself, there are also more practical benefits nearby such as efficient commuter links by road and rail, excellent schools at both primary and secondary levels, wide ranging amenities, leisure facilities and much more at both the neighbouring towns of Congleton and Holmes Chapel that are moments away by car.
Read on to find out more, view our video, floor plan and photos then call the town and country experts here at Chris Hamriding Estate Agents to book yourself that all important viewing!
EPC Rating: D
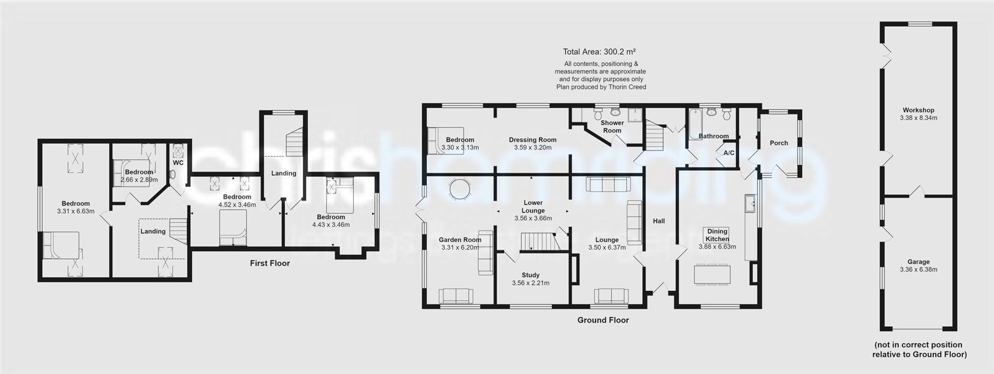
Lounge
Dimensions: 3.50 x 6.37 (11'5" x 20'10").
Lower Lounge
Dimensions: 3.56 x 3.66 (11'8" x 12'0").
Garden Room
Dimensions: 3.31 x 6.20 (10'10" x 20'4").
Study
Dimensions: 3.56 x 2.21 (11'8" x 7'3").
Dining Kitchen
Dimensions: 3.88 x 6.63 (12'8" x 21'9").
Ground Floor Master Bedroom With Dressing Room And
Dimensions: 3.30 x 3.31 & 3.59 x 3.20 (10'9" x 10'10" & 11'9" .
Bedroom Two
Dimensions: 4.43 x 3.46 (14'6" x 11'4").
Bedroom Three
Dimensions: 4.52 x 3.46 (14'9" x 11'4").
Bedroom Four
Dimensions: 3.31 x 6.63 (10'10" x 21'9").
Bedroom Five
Dimensions: 2.66 x 2.89 (8'8" x 9'5").
Parking - Garage
Parking - Driveway
Viewing
Please contact us on 01260 543 999 if you wish to arrange a viewing appointment for this property, or require further information.
Disclaimer
Chris Hamriding - CW12 endeavour to maintain accurate depictions of properties in Virtual Tours, Floor Plans and descriptions, however, these are intended only as a guide and purchasers must satisfy themselves by personal inspection.

