- Stunning extended home with countryside views
- Beautiful location on the edge of development overlooking Cheshire countryside
- Massively improved, extended and upgraded since new by current owners
- Incredible living kitchen with feature glazing into striking gardens
- Five generous bedrooms plus three luxury bathrooms
- Two beautiful reception rooms with sumptuous decoration
- Double garage and large driveway to front
- Immaculate landscaped gardens you will absolutely love!
- A truly impressive home offering the perfect lifestyle!
- Watch our video then call to view!
Full Description
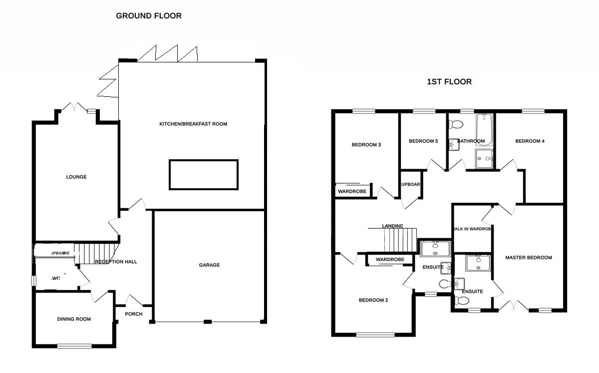
You will love this fabulous home from the moment you lay eyes on it so take a few moments to watch our guided video tour, it's absolutely stunning!Tucked away in the corner of an exclusive cul de sac with the most amazing countryside views, this beautiful property has been impressively extended since it was first constructed and the upgrades have further enhanced an already fabulous home! The kerb appeal is huge and the pretty house offers a brilliant lifestyle for families from the moment you enter into the welcoming entrance hall. From this hallway you can access the luxurious lounge, the snug/dining room, guest cloakroom (with utility store) and the show-stopping social kitchen that's sure to be the hub of this gorgeous home with its recently added orangery and bifolding doors accessing the incredible private gardens! Moving up to the first floor finds you on a stylish galleried landing that gives access to all five double bedrooms, two luxury en suites and the family bathroom. The layout is so family friendly and could suit families of all ages very well indeed. The gardens are an absolute triumph and must be seen to be believed!!The specification throughout is luxurious and of the highest quality and the presentation is breathtaking, we cannot stress enough how clean this home is! A true credit to the current owner.Locally, the immediate area sits perfectly between the useful facilities of Congleton town centre and miles of beautiful Cheshire countryside. Great schools and commuter links are on your doorstep and therefore we feel this truly is the perfect family upsize so read on to find out more, view our video, photos and floor plan then call us here at Chris Hamriding Estate Agents to book yourself that all important viewing!
Viewing
Please contact us on 01260 543 999 if you wish to arrange a viewing appointment for this property, or require further information.
Energy Performance Certificate
Click here to view the Energy Efficiency Rating and Environmental Impact Rating for this property.
Disclaimer
Chris Hamriding - CW12 endeavour to maintain accurate depictions of properties in Virtual Tours, Floor Plans and descriptions, however, these are intended only as a guide and purchasers must satisfy themselves by personal inspection.
Viewing
Please contact us on 01260 543 999 if you wish to arrange a viewing appointment for this property, or require further information.
Energy Performance Certificate
Click here to view the Energy Efficiency Rating and Environmental Impact Rating for this property.
Disclaimer
Chris Hamriding - CW12 endeavour to maintain accurate depictions of properties in Virtual Tours, Floor Plans and descriptions, however, these are intended only as a guide and purchasers must satisfy themselves by personal inspection.

