Full Description
Take a moment to view our HD, aerial ‘signature’ video tour!
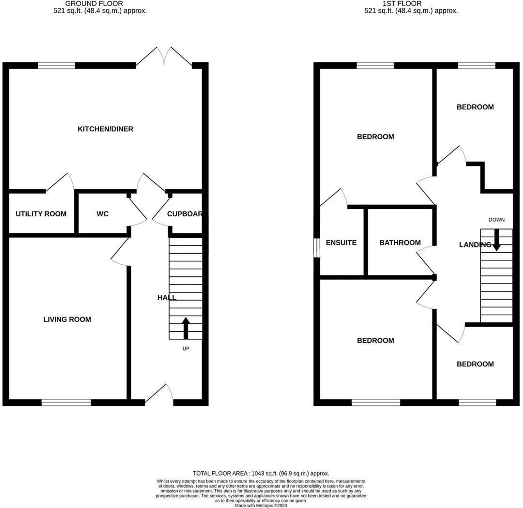
Welcome to 8, Samuel Armstrong Way, an impressive four-bedroom detached home, beautifully positioned within the highly sought-after Stoneley Park development, constructed by reputable builders, Taylor Wimpey. As you step through the wide and inviting entrance hall, you are instantly greeted by a sense of space and light that continues throughout the property, setting the tone for the elegant living accommodation on offer. The heart of the home is undoubtedly the stunning open-plan kitchen/dining area located at the rear of the house, which boasts contemporary fittings, ample preparation space and a seamless flow ideal for both every-day family living and entertaining guests. The kitchen is designed with both style and practicality in mind, featuring modern cabinetry, a wealth of integrated appliances, and generous dining space that encourages sociable mealtimes and gatherings. The ground floor also enjoys a convenient cloakroom, perfect for guests and everyday busy family life.
Upstairs, the property offers four well-proportioned bedrooms, each thoughtfully designed to provide comfort and flexibility for a growing family, home office, or guest accommodation. The master bedroom is a true retreat, complete with a private en-suite shower room for added luxury and privacy. Each bedroom is appointed with large windows that invite plenty of natural light, creating bright and welcoming spaces throughout. The family bathroom is finished to a high standard, offering modern fixtures and a calming atmosphere for relaxation. Additional features include a detached garage, providing excellent storage solutions and a driveway provides secure off road parking for several vehicles.
This home effortlessly combines contemporary style with practical amenities, making it the perfect choice for families or professionals seeking a spacious and versatile living environment. Don’t miss your chance to make this stunning property your new home - be sure to explore the photos, video tour, and detailed floorplan available, and contact us today to arrange your viewing and experience all that this exceptional home has to offer!
Entrance Hall (6.09m x 1.94m)
Lounge (4.50m x 3.26m)
Cloakroom (1.63m x 1.22m)
Kitchen/Diner (5.41m x 3.35m)
Utility (1.55m x 1.23m)
First Floor Landing (4.3m x 2.1m)
Bedroom One (3.84m x 3.19m)
En-Suite (2.11m x 1.20m)
Bedroom Two (3.39m x 3.17m)
Bedroom Three (3.49m x 2.11m)
Bedroom Four (2.23m x 2.10m)
Bathroom (2.0m x 1.9m)
Detached Garage (5.29m x 2.58m)
Parking - Driveway
Disclaimer
As the Sellers agent, we are not Surveyors or Conveyancing experts and as such we cannot and do not comment on the condition of the property or other issues relating to title or other legal issues that may affect this property, unless we have been made aware of such matters. Interested parties should employ their own professionals to make such enquiries before making any transactional decisions. We have not carried out a structural survey and the services, appliances and specific fittings have not been tested. All photographs, measurements, floor plans and distances referred to are given as a guide only. Lease details, service charges and ground rent (where applicable) and council tax are given as a guide only and should be checked and confirmed by a solicitor prior to exchange of contracts. The copyright of all details, photographs and floorplans remain the possession of Chris Hamriding Lettings & Estates.
Viewing
Please contact us on 01270 346500 if you wish to arrange a viewing appointment for this property, or require further information.
Disclaimer
Chris Hamriding - CW12 endeavour to maintain accurate depictions of properties in Virtual Tours, Floor Plans and descriptions, however, these are intended only as a guide and purchasers must satisfy themselves by personal inspection.

