Full Description
Take a moment to view our signature guided tour of this exceptionally well-presented, 3/4 bedroom semi-detached home!Positioned on the fringe of the 'J One Seven' estate constructed by Barratt Homes, 13 Meadow Brown Place is a superb proposition for one lucky buyer to purchase a 'turn key' home and be situated within walking distance to Sandbach Town Centre and it's many amenities.Having flexible accommodation arranged over three floors, the property layout can be utilised in a variety of ways, depending on your needs. On the ground floor, there is a versatile reception room which makes a great home office or even a ground floor bedroom, across the entrance hall there is a handy storage cupboard and ground floor WC. Towards the rear of the home, there is the sociable open-plan living dining/kitchen, with it's modern kitchen units which are not only stylish, but incredibly well equipped! This is the way we all want to live these days and being at the rear of the home and having the walk-in bay window plus French doors to the rear, this whole space frames the rear garden beautifully!The first floor, is home to the formal lounge with its dual aspect and again, versatility! The master suite is located on this floor which comfortably affords a double bed with space for wardrobing too. The en-suite complements the home with it's large shower & designer sanitary ware. Finally, the second floor has a further stylish bathroom and two well-balanced double bedrooms.Externally, the home is approached via a double width driveway and to the rear, the rear garden has been landscaped to include an Indian stone terrace, manicured lawn and further paved seating area at the foot of the garden.So, what's not to love! View our photos, video & floorplans, then call the experts here at Chris Hamriding to book that all-important viewing!
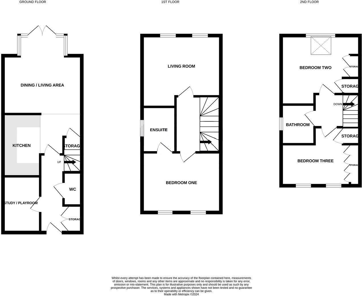
Accommodation
Entrance Hall (4.44 x 1.32 (14'6" x 4'3"))
Cloakroom (1.64 x 0.85 (5'4" x 2'9"))
Study/Playroom (2.79 x 1.86 (9'1" x 6'1"))
Open Plan Living Kitchen/Diner
Kitchen Area (3.93 x 3.06 (12'10" x 10'0"))
Lounge/Dining Area (3.99 x 3.92 (13'1" x 12'10"))
(into bay)
First Floor Landing (2.70 x 2.30 (8'10" x 7'6"))
Lounge (3.92 x 2.95 (12'10" x 9'8"))
Bedroom One (3.92 x 3.08 (12'10" x 10'1"))
En-suite (2.15 x 1.54 (7'0" x 5'0"))
Second Floor Landing (2.03 x 1.89 (6'7" x 6'2"))
Bedroom Two (3.94 x 3.48 (12'11" x 11'5"))
Bedroom Three (3.90 x 2.84 (12'9" x 9'3"))
Bathroom (1.94 x 1.78 (6'4" x 5'10"))
Viewing
Please contact us on 01270 346500 if you wish to arrange a viewing appointment for this property, or require further information.
Energy Performance Certificate
Click here to view the Energy Efficiency Rating and Environmental Impact Rating for this property.
Disclaimer
Chris Hamriding - CW12 endeavour to maintain accurate depictions of properties in Virtual Tours, Floor Plans and descriptions, however, these are intended only as a guide and purchasers must satisfy themselves by personal inspection.
Accommodation
Entrance Hall (4.44 x 1.32 (14'6" x 4'3"))
Cloakroom (1.64 x 0.85 (5'4" x 2'9"))
Study/Playroom (2.79 x 1.86 (9'1" x 6'1"))
Open Plan Living Kitchen/Diner
Kitchen Area (3.93 x 3.06 (12'10" x 10'0"))
Lounge/Dining Area (3.99 x 3.92 (13'1" x 12'10"))
(into bay)
First Floor Landing (2.70 x 2.30 (8'10" x 7'6"))
Lounge (3.92 x 2.95 (12'10" x 9'8"))
Bedroom One (3.92 x 3.08 (12'10" x 10'1"))
En-suite (2.15 x 1.54 (7'0" x 5'0"))
Second Floor Landing (2.03 x 1.89 (6'7" x 6'2"))
Bedroom Two (3.94 x 3.48 (12'11" x 11'5"))
Bedroom Three (3.90 x 2.84 (12'9" x 9'3"))
Bathroom (1.94 x 1.78 (6'4" x 5'10"))
Viewing
Please contact us on 01270 346500 if you wish to arrange a viewing appointment for this property, or require further information.
Energy Performance Certificate
Click here to view the Energy Efficiency Rating and Environmental Impact Rating for this property.
Disclaimer
Chris Hamriding - CW12 endeavour to maintain accurate depictions of properties in Virtual Tours, Floor Plans and descriptions, however, these are intended only as a guide and purchasers must satisfy themselves by personal inspection.

