- The Heatherington
- Stunning new luxury development in Congleton
- Surrounded by miles of beautiful Cheshire countryside
- Reserve now
- Energy efficient
- 'Easy Move' options available
- High specification with a range of upgrade options
- Close to town and country with excellent commuting links
- A four bedroom detached with detached single garage
- A range of beautiful homes from five star builders 'Castle Green Homes'
Full Description
Show Homes Now Open
Welcome to Woodland Manor, a beautiful new housing development by Castle Green Homes nestled alongside the picturesque River Dane in Congleton, Cheshire. Offering a stunning selection of 3 and 4 bedroom homes, Woodland Manor combines modern living with the tranquil charm of waterside living. The development is designed to provide a welcoming community atmosphere, featuring unique yet stylish homes that blend seamlessly into the natural landscape. With its exceptional location and thoughtfully designed properties, Woodland Manor is the perfect place to call home.
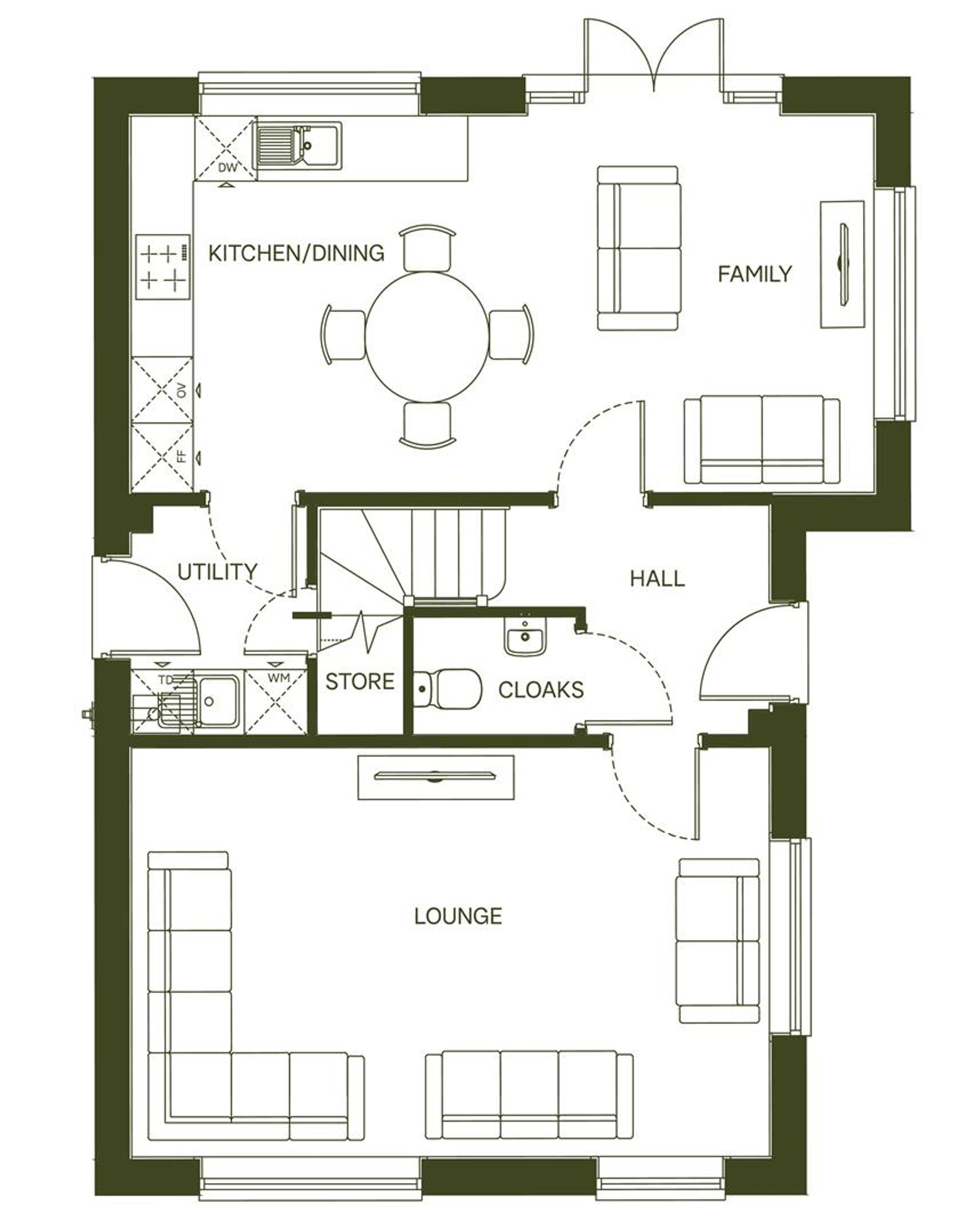
The Heatherington - Great first impressions are key to finding your dream home and that’s certainly what you get with The Heatherington at Woodland Manor. Open the front door to find a spacious hallway welcoming you to this stylish new home. On the left you will discover a living room running the whole length of the house offering plenty of space and light. To the right a generous kitchen, dining and family area with French doors leading onto the garden, creating the perfect family space. A laundry room and cloakroom complete the ground floor. On the first floor you will experience the wonderful master bedroom with en suite. Three further bedrooms along with a family bathroom complete this beautiful new home. Are you ready to make the Heatherington your new home in Congleton?
EPC Rating: A
Lounge
Dimensions: 6.15m x 3.76m (20'2 x 12'4).
Cloakroom
Dimensions: 1.57m x 1.09m (5'2 x 3'7).
Kitchen/ Dining/ Family
Dimensions: 7.16m x 3.45m (23'6 x 11'4).
Utility
Dimensions: 2.11m x 1.70m (6'11 x 5'7).
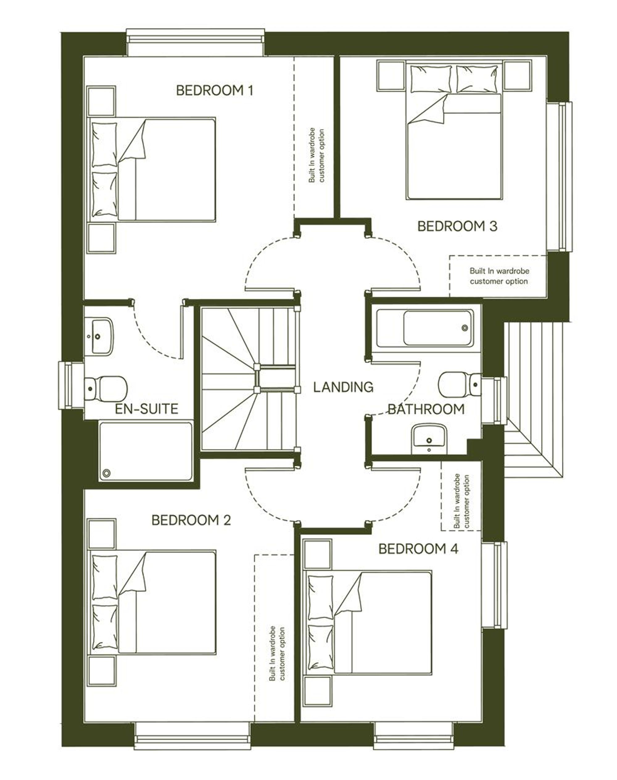
Bedroom One
Dimensions: 3.89m x 3.48m (12'9 x 11'5).
Ensuite
Dimensions: 1.70m x 2.54m (5'7 x 8'4).
Bedroom Two
Dimensions: 3.33m x 3.25m (10'11 x 10'8).
Bedroom Three
Dimensions: 3.45m x 3.20m (11'4 x 10'6).
Bedroom Four
Dimensions: 3.73m x 2.82m (12'3 x 9'3).
Bathroom
Dimensions: 2.16m x 1.70m (7'1 x 5'7).
Parking - Garage
Parking - Off Street
Viewing
Please contact us on 01260 543 999 if you wish to arrange a viewing appointment for this property, or require further information.
Disclaimer
Chris Hamriding - CW12 endeavour to maintain accurate depictions of properties in Virtual Tours, Floor Plans and descriptions, however, these are intended only as a guide and purchasers must satisfy themselves by personal inspection.

