- High specification with a range of upgrade options
- Close to town and country with excellent commuting links
- 'The Henley Waterside' - Stunning three bedroom detached
- A range of beautiful homes from five star builders, 'Castle Green Homes'
- Full reservation available - £500 refundable deposit!
- Show Homes Now Open!
- Energy efficient
- 'Easy move' options available
Full Description
***Show homes and sales centre now open***
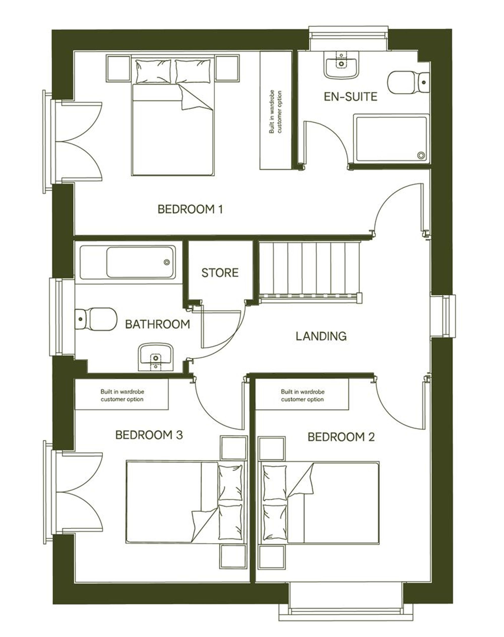
The attractive three-bedroom Henley Waterside is a home that combines timeless aesthetics with modern living, set close to the River Dane in Congleton. On the ground floor, you'll find a spacious kitchen and dining area that opens seamlessly into the garden through elegant French doors, perfect for hosting gatherings or enjoying peaceful moments outdoors. A separate lounge provides a cosy retreat for relaxing at the end of the day. Upstairs, the primary bedroom and bedroom three both feature Juliet balconies, while the primary also includes an en-suite shower room. A well-appointed family bathroom completes the first floor, offering comfort and practicality for everyday living.
Woodland Manor, a beautiful new housing development by Castle Green Homes nestled alongside the picturesque River Dane in Congleton, Cheshire. Offering a stunning selection of 3 and 4 bedroom homes, Woodland Manor combines modern living with the tranquil charm of waterside living. The development is designed to provide a welcoming community atmosphere, featuring unique yet stylish homes that blend seamlessly into the natural landscape. With its exceptional location and thoughtfully designed properties, Woodland Manor is the perfect place to call home.
Lounge
Dimensions: 5.59 x 3.23 (18'4" x 10'7").
Kitchen/Dining
Dimensions: 5.59 x 2.91 (18'4" x 9'6").
Utility
Dimensions: 2.13 x 1.98 (6'11" x 6'5").
Bedroom One
Dimensions: 3.43 x 2.95 (11'3" x 9'8").
En Suite
Dimensions: 2.09 x 1.81 (6'10" x 5'11").
Bedroom Two
Dimensions: 3.27 x 2.75 (10'8" x 9'0").
Bedroom Three
Dimensions: 3.27 x 2.75 (10'8" x 9'0").
Bathroom
Dimensions: 2.13 x 1.70 (6'11" x 5'6").
Parking - Off Street
Viewing
Please contact us on 01260 543 999 if you wish to arrange a viewing appointment for this property, or require further information.
Disclaimer
Chris Hamriding - CW12 endeavour to maintain accurate depictions of properties in Virtual Tours, Floor Plans and descriptions, however, these are intended only as a guide and purchasers must satisfy themselves by personal inspection.

