- 'Easy move' options available
- High specification with a range of upgrade options
- Show Homes Now Open!
- 'The Stratford Waterside' - Stunning three bedroom detached
- Energy efficient
- Close to town and country with excellent commuting links
- A range of beautiful homes from five star builders, 'Castle Green Homes'
- Full reservation available - £500 refundable deposit!
Full Description
***Show homes and sales centre now open***
Discover the Stratford Waterside, a charming three-bedroom home set close to the River Dane in Congleton in a tranquil, sought-after location. With its inviting canopy porch, the Stratford offers a spacious, thoughtfully designed interior ideal for modern living. At its heart is an open-plan kitchen and dining area, perfect for cooking, dining and gathering with loved ones, complemented by a cosy lounge for relaxed evenings in. Upstairs, the primary bedroom features an en-suite and Juliet balcony, with two further bedrooms and a sleek family bathroom completing the first floor. Blending comfort and style, the Stratford Waterside offers a calm, well-connected retreat from the everyday hustle.
Woodland Manor is a beautiful new housing development by Castle Green Homes nestled alongside the picturesque River Dane in Congleton, Cheshire. Offering a stunning selection of 3 and 4 bedroom homes, Woodland Manor combines modern living with the tranquil charm of waterside living. The development is designed to provide a welcoming community atmosphere, featuring unique yet stylish homes that blend seamlessly into the natural landscape. With its exceptional location and thoughtfully designed properties, Woodland Manor is the perfect place to call home.
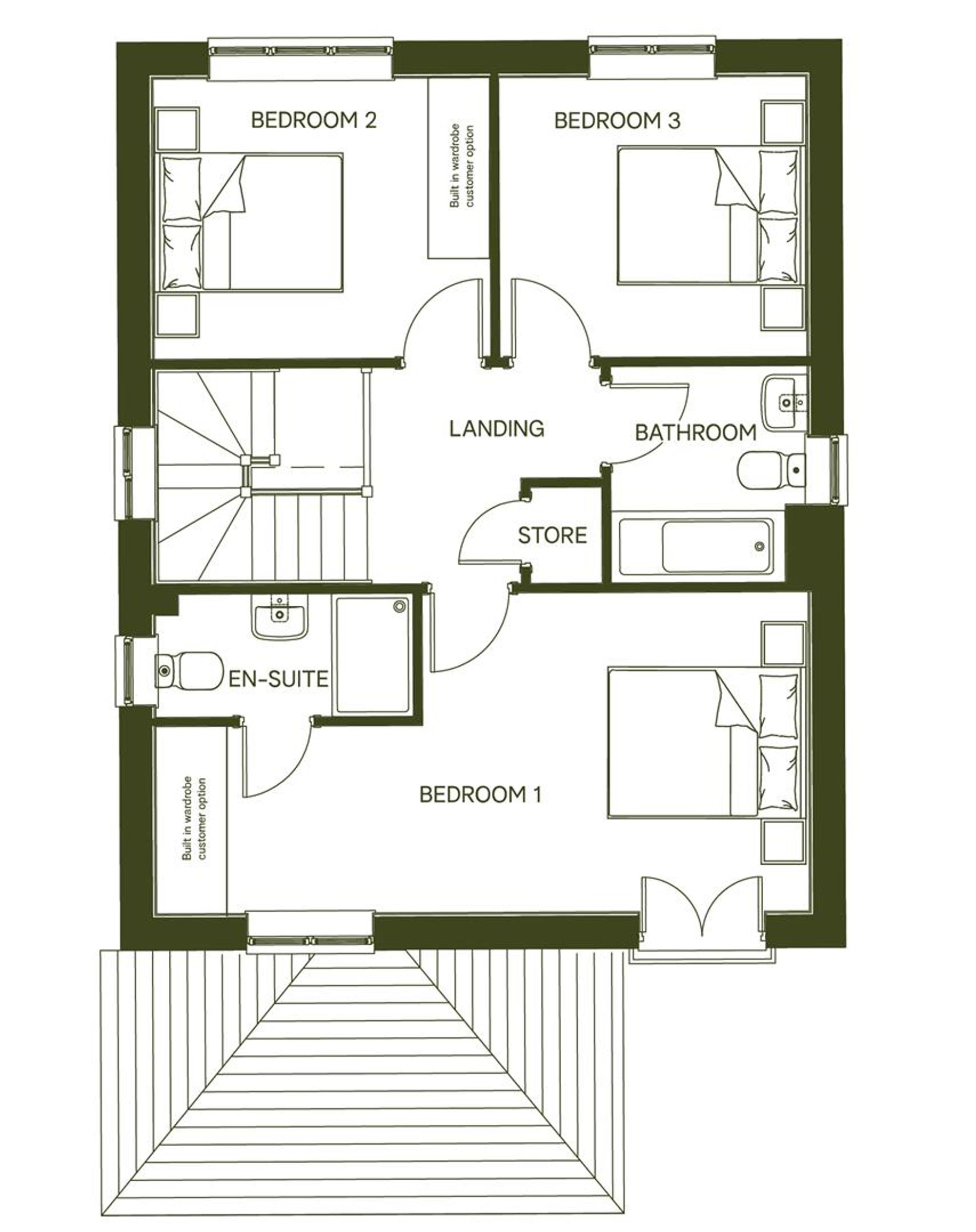
Lounge
Dimensions: 4.68 x 3.6 (15'4" x 11'9").
Kitchen/Dining
Dimensions: 6.38 x 2.74 (20'11" x 8'11" ).
Bedroom One
Dimensions: 6.39 x 3.09 (20'11" x 10'1").
En Suite
Dimensions: 2.57 x 1.22 (8'5" x 4'0").
Bedroom Two
Dimensions: 3.34 x 2.75 (10'11" x 9'0").
Bedroom Three
Dimensions: 3.05 x 2.76 (10'0" x 9'0").
Bathroom
Dimensions: 2.09 x 1.08 (6'10" x 3'6").
Parking - Garage
Parking - Off Street
Viewing
Please contact us on 01260 543 999 if you wish to arrange a viewing appointment for this property, or require further information.
Disclaimer
Chris Hamriding - CW12 endeavour to maintain accurate depictions of properties in Virtual Tours, Floor Plans and descriptions, however, these are intended only as a guide and purchasers must satisfy themselves by personal inspection.

