Full Description
Take a moment to view our guided tour of this ideal first time purchase with its south facing, landscaped rear gardens!
A perfect example of a modern, energy efficient property situated on the increasingly popular, "The Hedgerows" development within the confines of Alsager. The property has been improved further by the current owners during their tenure by completely landscaping the rear garden and the addition of a car charging point plus the loft space has been boarded to create a useful storage area.
Accompanying the property are a number of features worthy of mention, some of which include: Energy efficient double glazing & gas central heating throughout, a welcoming entrance hallway with wooden style flooring & matted area, a well presented downstairs cloakroom, a spacious lounge with wall-hung feature electric fire and useful understairs storage. To the rear of the home is the superb, sociable open-plan kitchen/diner compete with a range of integrated appliances, contemporary high-gloss units with contrasting wooden preparation surfaces and French doors leading out to the rear garden.
To the first floor are two generous double bedrooms, with the principle bedroom enjoying a built-in storage cupboard with shelving, a wardrobe and dressing table. Both bedrooms are serve bed via a centrally located family bathroom with modern three piece sanitary suite and quality tiling.
Externally, the property benefits from a tarmac driveway to the front providing invaluable side-by-side off road parking and the rear offers a stunning fully enclosed garden, with an extended stone effect patio area and pathways plus an easy to maintain artificial lawn which has a sunny, south-facing aspect & excellent degrees of privacy - perfect to enjoy all-year round!
So, what's not to love! Watch our video, photos and floor plan, then call the experts here at Chris Hamriding Estate Agents to book that all-important viewing!
EPC Rating: B
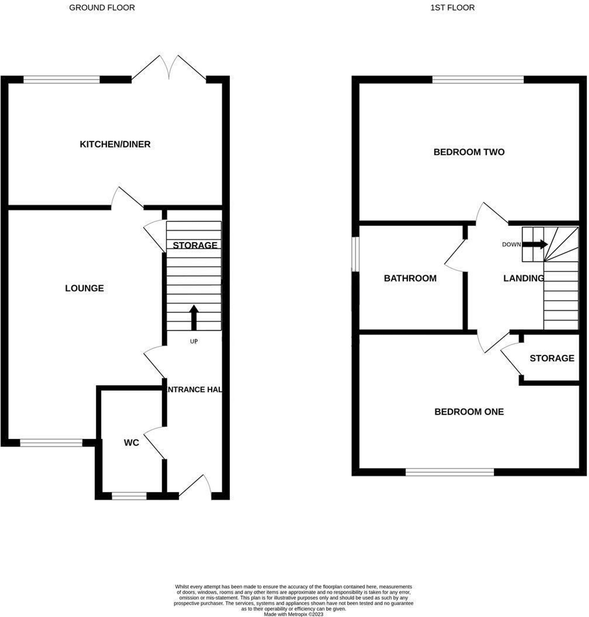
Entrance Hall
Dimensions: 2.83 x 0.94 (9'3" x 3'1").
Cloakroom
Dimensions: 1.45 x 0.98 (4'9" x 3'2").
Lounge
Dimensions: 4.61 x 2.83 (15'1" x 9'3").
Kitchen/Diner
Dimensions: 3.86 x 2.47 (12'7" x 8'1").
Fist Floor Landing
Dimensions: 2.83 x 1.92 (9'3" x 6'3").
Bedroom One
Dimensions: 3.87 x 2.61 (12'8" x 8'6").
Bedroom Two
Dimensions: 3.26 x 2.49 (10'8" x 8'2"). (to front of wardrobe)
Family Bathroom
Dimensions: 1.91 x 1.68 (6'3" x 5'6").
Disclaimer
As the Sellers agent, we are not Surveyors or Conveyancing experts and as such we cannot and do not comment on the condition of the property or other issues relating to title or other legal issues that may affect this property, unless we have been made aware of such matters. Interested parties should employ their own professionals to make such enquiries before making any transactional decisions. We have not carried out a structural survey and the services, appliances and specific fittings have not been tested. All photographs, measurements, floor plans and distances referred to are given as a guide only. Lease details, service charges and ground rent (where applicable) and council tax are given as a guide only and should be checked and confirmed by a solicitor prior to exchange of contracts. The copyright of all details, photographs and floorplans remain the possession of Chris Hamriding Lettings & Estates.
Viewing
Please contact us on 01270 346500 if you wish to arrange a viewing appointment for this property, or require further information.
Disclaimer
Chris Hamriding - CW12 endeavour to maintain accurate depictions of properties in Virtual Tours, Floor Plans and descriptions, however, these are intended only as a guide and purchasers must satisfy themselves by personal inspection.
Parsing error occurred in template '85399453' -> Object reference not set to an instance of an object.
Content.RazorEngine37
at Content.RazorEngine37.RazorEngineTemplatingService.Parse(String Markup, Object Model, String UniqueKey)
at Content.RazorEngine37.RazorEngineTemplatingService.Render(String Markup, Object Model, ICanvas Output)
at AFP.WebUI.Presentation.Components.Form.Form.Render()
at AFP.Content.WebControls.ContentControl._Lambda$__5(IComponent x)Object reference not set to an instance of an object.
AFP.Content.Templating
at AFP.Content.Templating.Helpers.ContentHelper.get_Heading()
at CallSite.Target(Closure , CallSite , Object )
at CompiledRazorTemplates.Dynamic.RazorEngine_2032ade5db214bf284b7c0b4641e3d93.Execute()
at RazorEngine.Templating.TemplateBase.RazorEngine.Templating.ITemplate.Run(ExecuteContext context, TextWriter reader)
at RazorEngine.Templating.TemplateBase.<>c__DisplayClass3.
at RazorEngine.Templating.TemplateWriter.WriteTo(TextWriter writer)
at RazorEngine.Templating.TemplateBase.Write(TemplateWriter helper)
at CallSite.Target(Closure , CallSite , RazorEngine_61eda031ca8b4397a3686b9cdc4bc2b7 , Object )
at CompiledRazorTemplates.Dynamic.RazorEngine_61eda031ca8b4397a3686b9cdc4bc2b7.Execute()
at RazorEngine.Templating.TemplateBase.RazorEngine.Templating.ITemplate.Run(ExecuteContext context, TextWriter reader)
at RazorEngine.Templating.TemplateBase.<>c__DisplayClass3.
at RazorEngine.Templating.TemplateWriter.WriteTo(TextWriter writer)
at RazorEngine.Templating.TemplateBase.Write(TemplateWriter helper)
at CompiledRazorTemplates.Dynamic.RazorEngine_ef5c4c0b764547e2a842106fcbdac658.Execute()
at RazorEngine.Templating.TemplateBase.RazorEngine.Templating.ITemplate.Run(ExecuteContext context, TextWriter reader)
at RazorEngine.Templating.RazorEngineCore.RunTemplate(ICompiledTemplate template, TextWriter writer, Object model, DynamicViewBag viewBag)
at RazorEngine.Templating.RazorEngineService.RunCompile(ITemplateKey key, TextWriter writer, Type modelType, Object model, DynamicViewBag viewBag)
at RazorEngine.Templating.DynamicWrapperService.RunCompile(ITemplateKey key, TextWriter writer, Type modelType, Object model, DynamicViewBag viewBag)
at RazorEngine.Templating.RazorEngineServiceExtensions.<>c__DisplayClass4.
at RazorEngine.Templating.RazorEngineServiceExtensions.WithWriter(Action`1 withWriter)
at RazorEngine.Templating.RazorEngineServiceExtensions.RunCompile(IRazorEngineService service, String name, Type modelType, Object model, DynamicViewBag viewBag)
at RazorEngine.Templating.RazorEngineServiceExtensions.RunCompile(IRazorEngineService service, String templateSource, String name, Type modelType, Object model, DynamicViewBag viewBag)
at Content.RazorEngine37.RazorEngineTemplatingService.Parse(String Markup, Object Model, String UniqueKey)

