- Close to town and country with excellent commuting links
- Show Homes Now Open!
- 'The Oxford' - Stunning three bedroom detached
- High specification with a range of upgrade options
- A range of beautiful homes from five star builders, 'Castle Green Homes'
- Full reservation available - £500 refundable deposit!
- 'Easy move' options available
- Energy efficient
Full Description
***Show homes and sales centre now open***
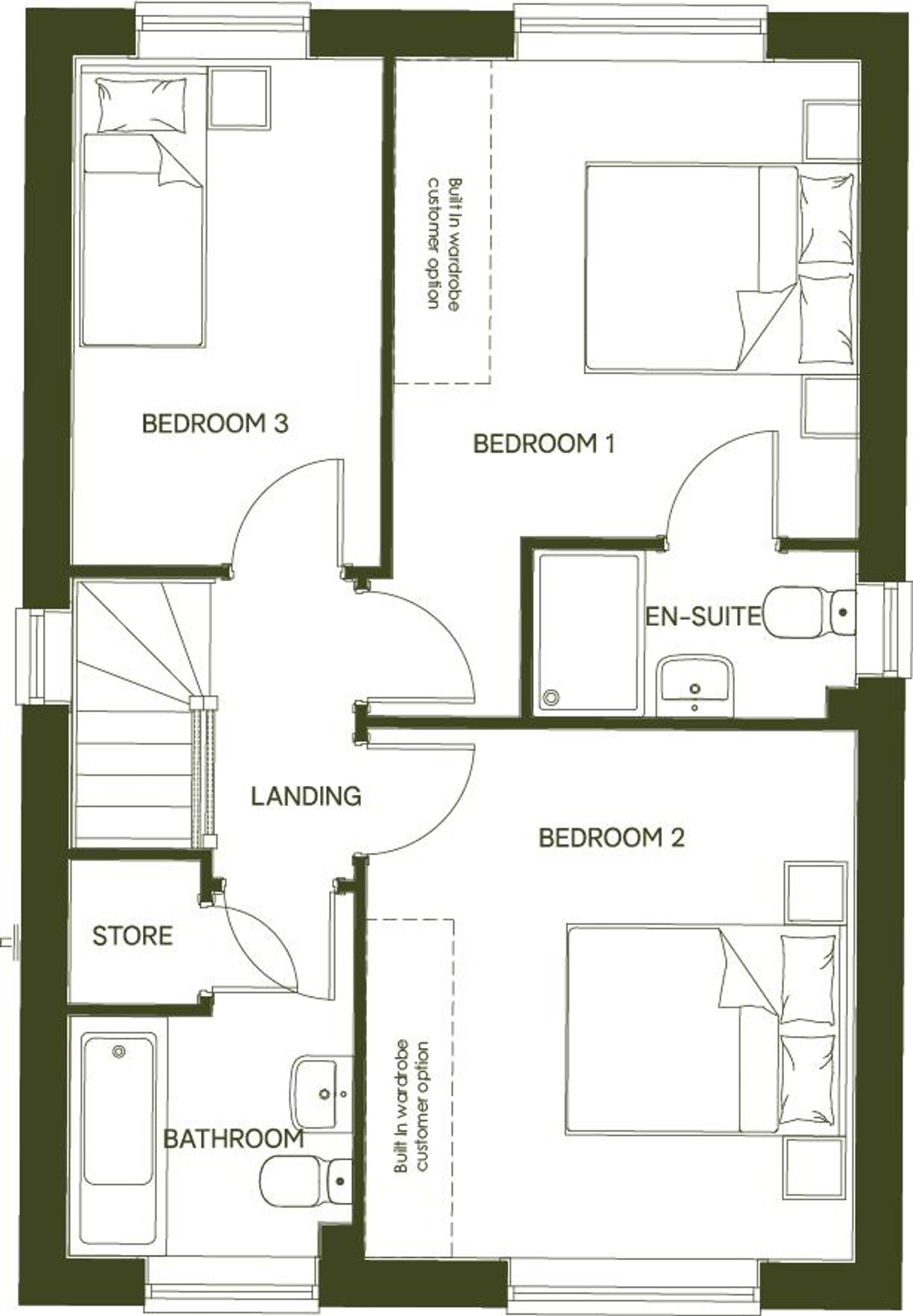
Smartly designed and full of character, 'The Oxford' is a 3-bedroom home perfect for first-time buyers, young families or couples. The ground floor offers a spacious lounge to the front, while an open-plan kitchen and dining area at the rear creates a practical and sociable hub-complete with access to the garden. A handy downstairs cloakroom adds everyday convenience. Upstairs, the primary bedroom benefits from its own en-suite shower room, providing a private retreat. Two further bedrooms and a modern family bathroom complete the layout, making the most of every inch of space.
Lounge
Dimensions: 4.83 x 3.5 (15'10" x 11'5").
Kitchen/Dining
Dimensions: 5.59 x 3.57 (18'4" x 11'8").
Bedroom One
Dimensions: 3.39 x 3.31 (11'1" x 10'10").
En Suite
Dimensions: 2.3 x 1.91 (7'6" x 6'3").
Bedroom Two
Dimensions: 3.76 x 3.48 (12'4" x 11'5").
Bedroom Three
Dimensions: 3.6 x 2.2 (11'9" x 7'2").
Bathroom
Dimensions: 2.02 x 1.71 (6'7" x 5'7").
Parking - Garage
Parking - Driveway
Viewing
Please contact us on 01260 543 999 if you wish to arrange a viewing appointment for this property, or require further information.
Disclaimer
Chris Hamriding - CW12 endeavour to maintain accurate depictions of properties in Virtual Tours, Floor Plans and descriptions, however, these are intended only as a guide and purchasers must satisfy themselves by personal inspection.

